Санкт - Петербург
Пн-Пт с 10:00 до 20:00 Сб,Вс - Выходные

комната в двухкомнатной кв. в Центре СПб ID: J2502

Санкт-Петербург, улица Союза Печатников, д.3

Комнаты 2
Площадь 55.3 м²
Этаж 2 из 5
Материал кирпичный
Тип продажи Свободная
 5 300 000  
5 250 000
291 666 /м²
Рассчитать ипотеку
QR
Ссылка на объект

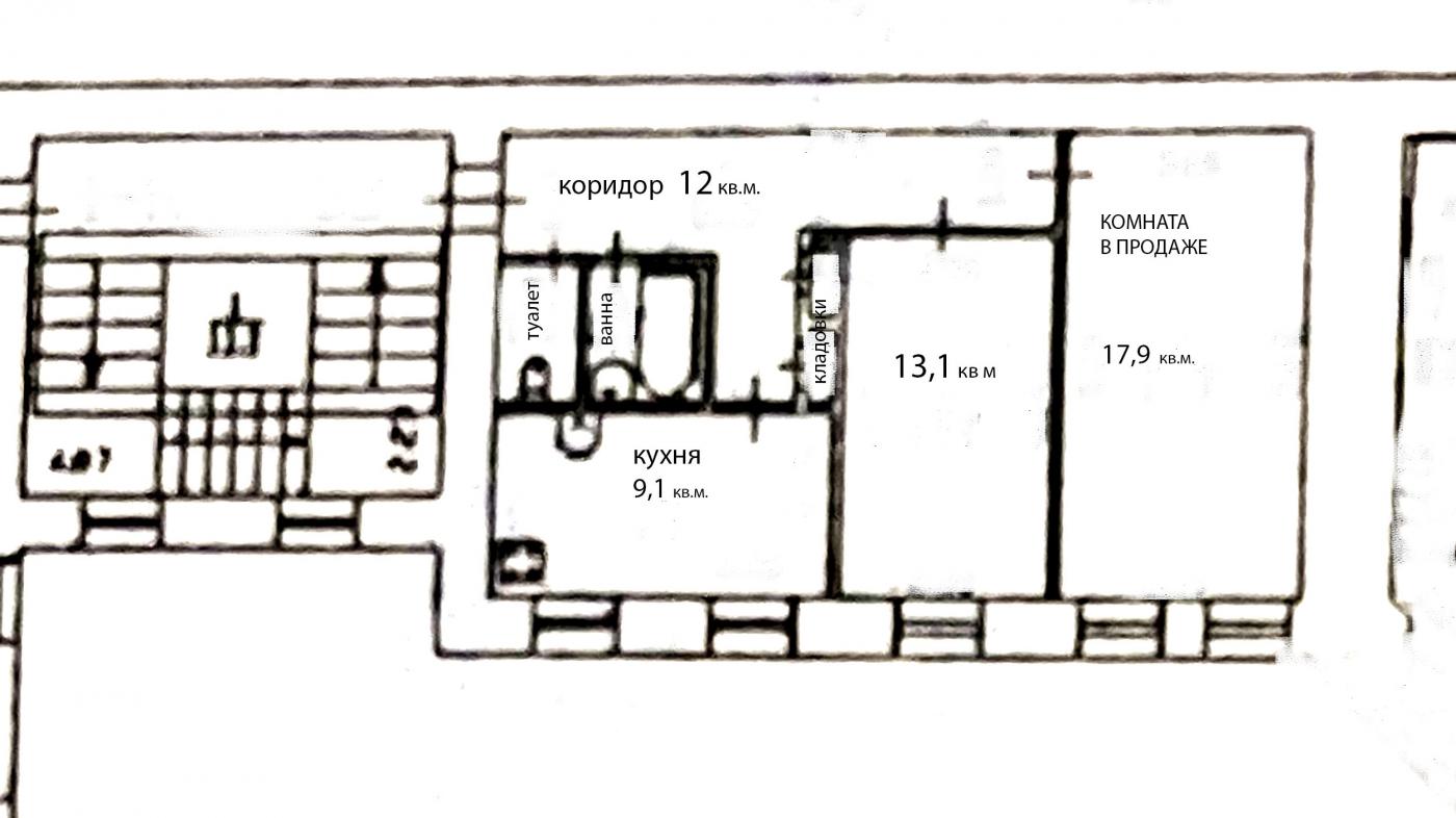
Описание

Прямая Продажа, один собственник.
Дом с капитальным ремонтом 1981 года. Перекрытия железо-бетонные.
Высота потолка 3 м. Кухня 9.1, общ площадь квартиры 55,3 кв.м., комнаты 18.
Соседу ( сособственнику- владеет комн. 13 кв. м.) в апреле выслано уведомление с предложением выкупа комнаты.
Комната свободна, светлая.
Санузел раздельный. Две кладовки.
Окна выходят в большой зеленый двор с детской площадкой и парковкой.
Во дворе вход в детский сад, в спортивную школу, бассейн.
Рядом Мариинский театр, Консерватория, ЛГУ им. Лесгафта, Новая Голландия, кафе, рестораны, магазины, поликлиники.
Хорошая транспортная доступность.
Ключи у агента.

Характеристики

  • Тип недвижимости Комнаты
  • Населенный пункт Санкт-Петербург
  • Адрес улица Союза Печатников, д.3
  • Площадь комнаты 18 м²
  • Комнат в квартире 2
  • Этаж 2
  • Этажей в доме 5
  • Кол-во комнат в сделке 1
  • Тип санузла раздельный
  • Балкон/лоджия застеклен(а) без балкона/лоджии застеклен и не застеклен
  • Общая площадь квартиры 55.3 м²
  • Тип дома кирпичный
  • Тип продажи Свободная

Задать вопрос



Вас также может заинтересовать:

14
2 комн. 33 м² в 17-комн.кв.
Санкт-Петербург, проспект Косыгина, д.9, к.1
Красногвардейский
Ладожская
4 900 000
  • Этаж:1
  • Тип санузла:раздельный
  • Тип дома:панельный

Мы используем файлы cookie, чтобы обеспечить вам наилучший доступ к нашему веб-сайту

Скопировано