Санкт - Петербург
Пн-Пт с 10:00 до 20:00 Сб,Вс - Выходные

Квартира в г.п. им. Морозова ID: J2481

Всеволожск, улица Новая, д.2

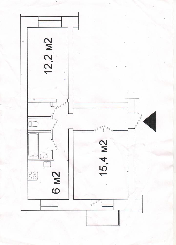
Комнаты 2
Площадь 46.6 м²
Жилая 26 м²
Кухня 6 м²
Этаж 2 из 2
Сдача 1952 г.
4 000 000
85 836 /м²
Рассчитать ипотеку
QR
Ссылка на объект

Описание

Продается уютная двухкомнатная квартира в поселке Имени Морозова. Квартира хорошей планировки , с балконом, двухсторонняя. Вокруг много зелени, прекрасный вид из окна. Капремонт общедомовых сетей в 2023-24 гг выполнен. 6 квартир в подъезде.Тихо и чисто.
Вся инфраструктура в шаговой доступности - магазины, аптеки, детский сад, школа. До Ладожского озера - 15-20 минут пешком! Хорошая транспортная доступность на автобусе до метро"Улица Дыбенко" - 40-50 минут езды
До КАД на машине - 30 минут. Прямая продажа. Один взрослый собственник.

Характеристики

  • Тип недвижимости Квартиры
  • Населенный пункт Всеволожск
  • Адрес улица Новая, д.2
  • Количество комнат 2
  • Год постройки дома 1952 г.
  • Общая площадь 46.6 м²
  • Жилая площадь 26 м²
  • Площадь кухни 6 м²
  • Этаж 2
  • Этажей в доме 2
  • Тип санузла Раздельный
  • Тип балкона балкон
  • Ремонт косметический
  • Состояние объекта хорошее
  • Наличие мебели да
  • Вид из окон во двор
  • Тип дома кирпичный
  • Апартаменты нет
  • Тип продажи Свободная

Задать вопрос


Мы используем файлы cookie, чтобы обеспечить вам наилучший доступ к нашему веб-сайту

Скопировано